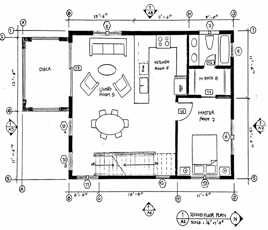
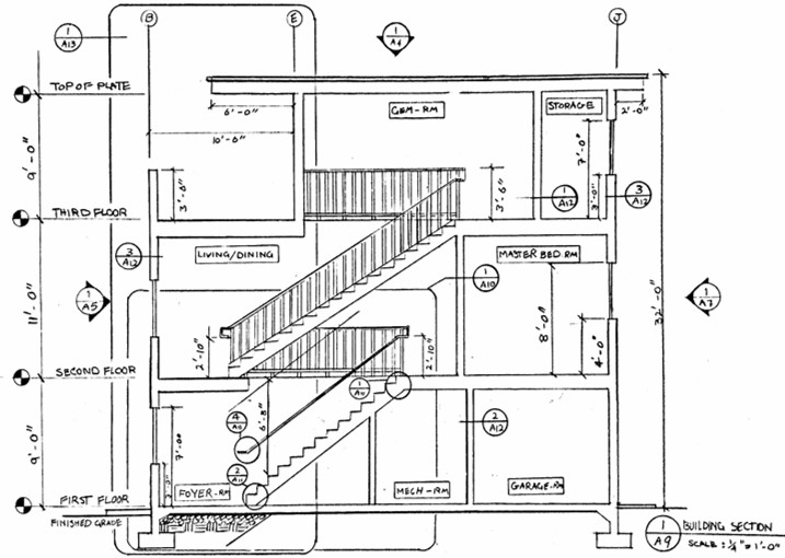
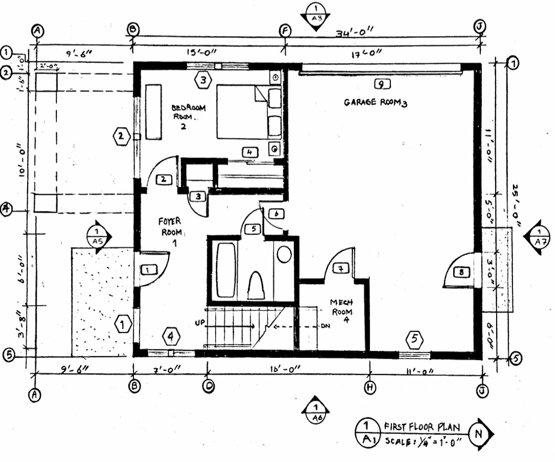
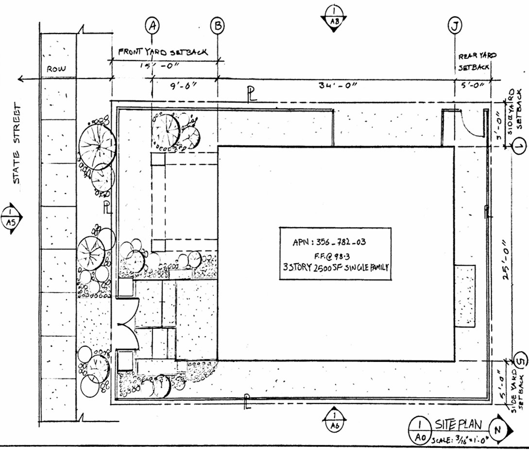
BASIC ARCHITECTURAL DRAFTING
Experinces
I hope to create environments that bring comfort, harmony, and healing to those who experience them.
HAND RENDERING
Skills Highlighted
Perspective renderings, shading, grayscale, color, graphite, pen & ink, marker
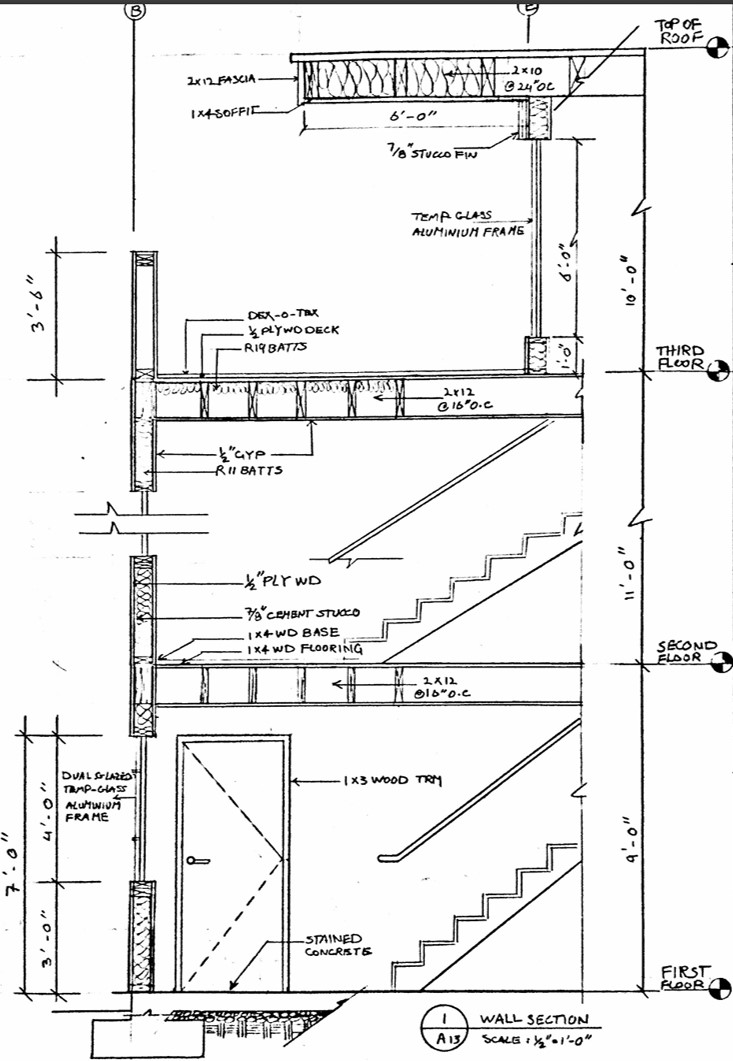
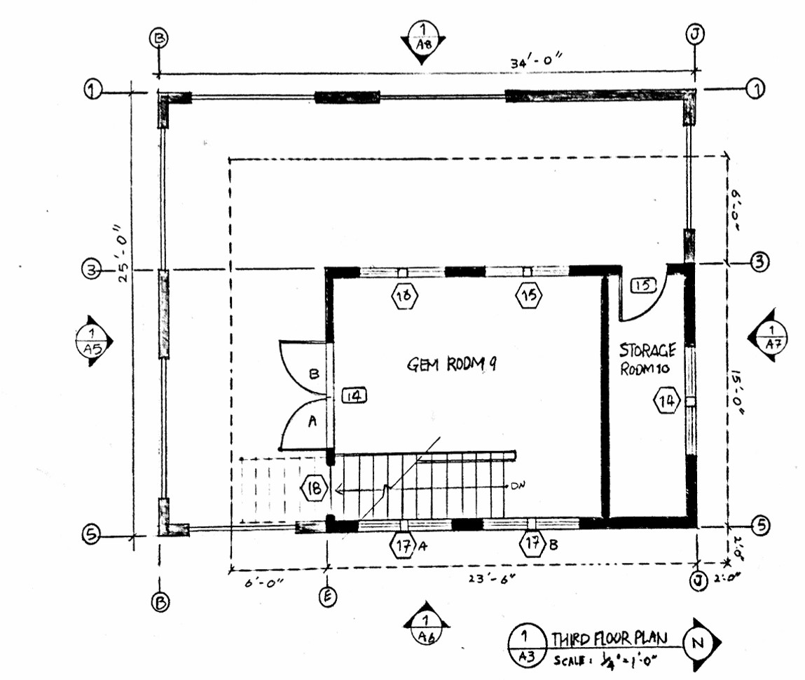
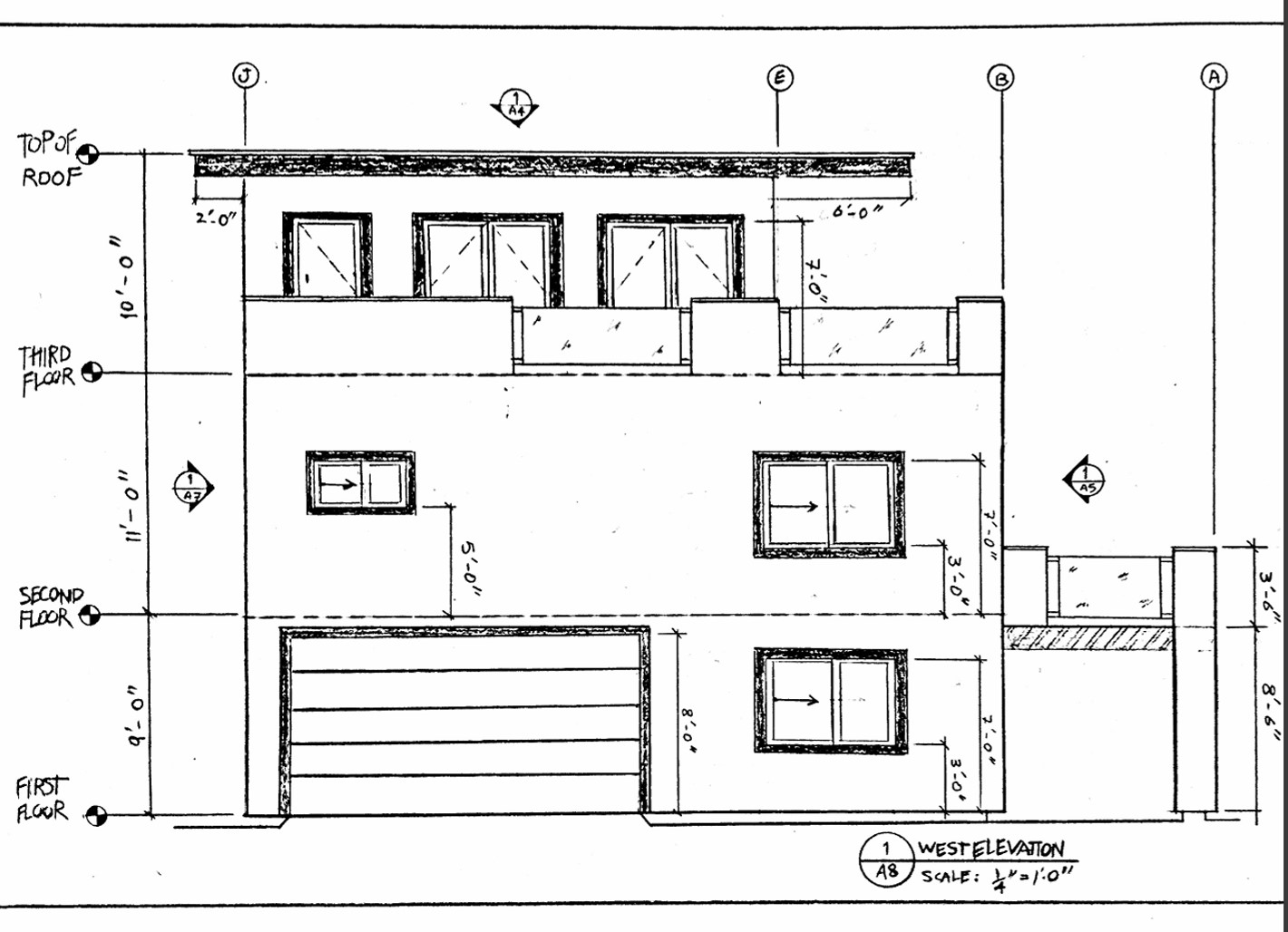
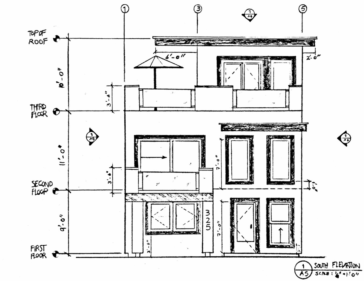
BASIC ARCHITECTURAL DRAFTING
First Second Third & Roof Plan
East & North Elevation
West & South Elevation
Section View